Продажа 3-комнатной квартиры, Томск, Московский, 107В, Томская область
- Регион
- Томская область
| Адрес | Томск, Московский, 107ВОбъект на карте |
- Тип дома
- Кирпично-монолитный
- Этаж
- 24 этаж в 24-этажном доме
- Кол-во комнат
- 3
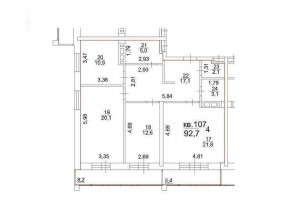
- Общая площадь
- 92.70 м2
- Жилая площадь
- 74.43 м2
- Площадь кухни
- 10.00 м2
- Дата обновления
- 17.04.2026
- Дата размещения
- 04.04.2026
Продаётся 3-к квартира в ЖК "Стрижи" класса Комфорт+ на берегу р. Томь. Идеология проекта состоит в создании максимально функционального жилого комплекса «Комфорт+» со своей закрытой территорией, обеспечивающей известную степень приватности и чувство защищенности, с прекрасным видом из любой точки, будь то вид на город или на реку Томь. Круглосуточное видеонаблюдение! Двор без автомобилей! Индивидуальное озеленение двора! Сердцем комплекса является здание торгового центра попеременной этажности (34 этажа) , на первом этаже которого откроется супермаркет, на втором - фитнесс-центр и другие полезные сервисы. Вторые и третьи этажи жилых домов предназначены под коммерческую недвижимость (офисные помещения) . Они призваны обеспечить, в первую очередь, интересы жильцов. Очень удобно, когда все самое необходимое в нескольких минутах от своей квартиры. Для взаимного удобства входы в жилую часть и офисные помещения разграничены. В 10 минутах ходьбы от ЖК Московский расположены Государственный и Политехнический университеты, Госпиталь Савиных и еще 3 медцентра, Детский сад, Театр, 4 Кафе, 2 Фитнес-клубаДля организации осмотра и получения дополнительной информации, свяжитесь со мной через чат на Портале DA или по телефону, всегда на связи в будние дни с 9-00 до 18-00 МСК+4. Предлагаем воспользоваться услугами профессионального агента для приобретения имущества с торгов











